SPORT CENTER







ENG
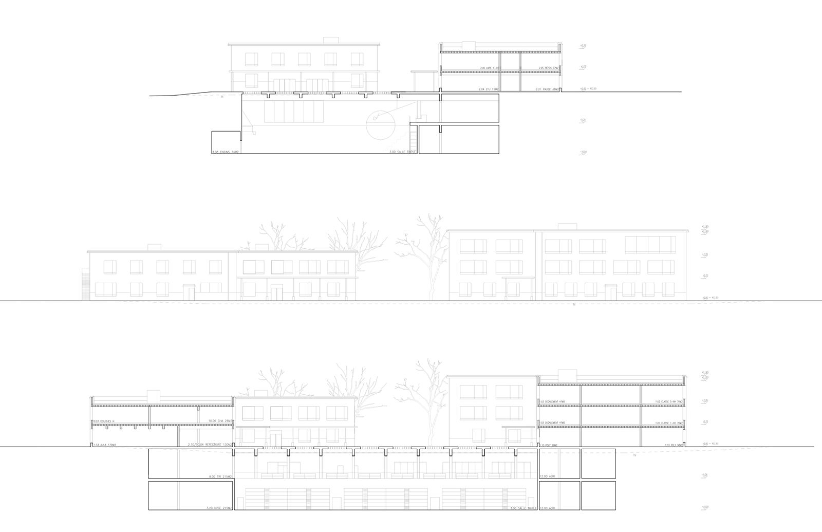
The project aims to preserve the undeveloped character of the surrounding perimeter by grouping buildings within the village perimeter while respecting the maximum surrounding dimensions in order to create coherence with the site. In order to minimize the visual impact, the project takes the option of burying the triple sports hall and its annexes. The buildings are articulated around a large courtyard that allows efficient access and clearly delimits the school complex from the surrounding housing. The courtyard, designed as a school and recreational area, provides a safe environment and access for the school children. This area, conceived as a place of life and leisure of the village, is appreciated and frequented by the sports clubs but also the inhabitants of the district. The soccer field, changing rooms and refreshment room of the club, tennis court, petanque field are arranged in the south of the plot. The area to the south of the complex is left undeveloped, with the sole exception of the refreshment area.
FR
The project aims to preserve the undeveloped character of the surrounding perimeter by grouping buildings within the village perimeter while respecting the maximum surrounding dimensions in order to create coherence with the site. In order to minimize the visual impact, the project takes the option of burying the triple sports hall and its annexes. The buildings are articulated around a large courtyard that allows efficient access and clearly delimits the school complex from the surrounding housing. The courtyard, designed as a school and recreational area, provides a safe environment and access for the school children. This area, conceived as a place of life and leisure of the village, is appreciated and frequented by the sports clubs but also the inhabitants of the district. The soccer field, changing rooms and refreshment room of the club, tennis court, petanque field are arranged in the south of the plot. The area to the south of the complex is left undeveloped, with the sole exception of the refreshment area.
ABOUT
Location: Champagne, Switzerland
Status: Competition
Collaboration: Romain D’Incau, Diana Fueyo
The project aims to preserve the undeveloped character of the surrounding perimeter by grouping buildings within the village perimeter while respecting the maximum surrounding dimensions in order to create coherence with the site. In order to minimize the visual impact, the project takes the option of burying the triple sports hall and its annexes. The buildings are articulated around a large courtyard that allows efficient access and clearly delimits the school complex from the surrounding housing. The courtyard, designed as a school and recreational area, provides a safe environment and access for the school children. This area, conceived as a place of life and leisure of the village, is appreciated and frequented by the sports clubs but also the inhabitants of the district. The soccer field, changing rooms and refreshment room of the club, tennis court, petanque field are arranged in the south of the plot. The area to the south of the complex is left undeveloped, with the sole exception of the refreshment area.
FR
The project aims to preserve the undeveloped character of the surrounding perimeter by grouping buildings within the village perimeter while respecting the maximum surrounding dimensions in order to create coherence with the site. In order to minimize the visual impact, the project takes the option of burying the triple sports hall and its annexes. The buildings are articulated around a large courtyard that allows efficient access and clearly delimits the school complex from the surrounding housing. The courtyard, designed as a school and recreational area, provides a safe environment and access for the school children. This area, conceived as a place of life and leisure of the village, is appreciated and frequented by the sports clubs but also the inhabitants of the district. The soccer field, changing rooms and refreshment room of the club, tennis court, petanque field are arranged in the south of the plot. The area to the south of the complex is left undeveloped, with the sole exception of the refreshment area.
ABOUT
Location: Champagne, Switzerland
Status: Competition
Collaboration: Romain D’Incau, Diana Fueyo